神辺町道上 売戸建住宅 999万円(2階建・3LDK)










物件種別
売戸建住宅
所在地
広島県福山市神辺町道上
アクセス
福塩線道上駅 徒歩20分
価格
999万円
築年数
50年(昭和50年5月築)
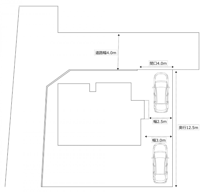
土地面積
178.00㎡(53.84坪)
建物面積
83.00㎡(25.1坪)
間取り
3LDK
駐車場
3台分あり
構造
木造2階建て
設備
個別LPG・公営水道・個別浄化槽・システムキッチン(L型)・全室フローリング・モニター付きインターホン・洗浄便座・シャンプードレッサー・床下収納
備考
・土地権利・・・所有権
・都市計画・・・市街化
・用途地域・・・第1種低層住居専用地域
・建ぺい率・・・40%
・容積率・・・80%
・地勢・・・高台
・接道状況・・・北東3.3m公道 南西3.8m公道
・現況・・・空家
・引き渡し・・・即時
・取引態様・・・媒介
・近隣施設・・・セブンイレブン福山加茂店800m・なかやま牧場加茂店1000m・道上小学校1200m・神辺中学校4300m
*2025年5月内装リフォーム済み(トイレ・壁・床・給排水管・建具)
*2025年5月外装リフォーム済み(外壁)


